Как благодаря коллектору в ЖК Versis получилось 10 пентхаусов

Висячие сады на Профсоюзной. Застройщику нужно было либо перекладывать сети, либо строить два отдельных корпуса, но выбрали третий вариант
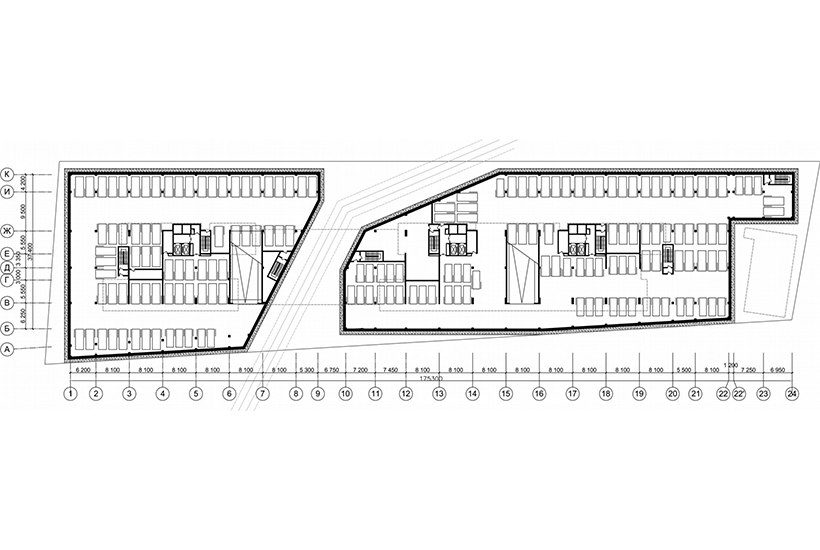
Наше бюро за все время существования разработало несколько сотен проектов. Одна из самых интересных историй связана с домом бизнес-класса Versis на Нахимовском проспекте. С одной стороны, площадка располагалась в хорошей локации на юго-западе Москвы, в пешей доступности от метро «Профсоюзная». С другой – это узкий длинный участок, через который проходит коллектор. То есть требовалось либо перекладывать сети, что было экономически нецелесообразно, либо строить два отдельно стоящих корпуса.

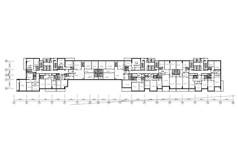
Однако мы предложили третий вариант: перекинуть три 35-метровых моста между двумя корпусами и разместить в них дополнительные квартиры с собственными террасами на крышах. Идея возникла в метро по дороге с работы, и первоначальный эскиз (на картинке выше) был создан в карманном блокноте. Застройщик – компания «Пересвет» – эту идею поддержал. В результате вместо стандартного жилого комплекса получился проект с тремя мостами, в которых расположено более 20 видовых квартир, часть – со своей эксплуатируемой кровлей, а также 6 пентхаусов. Еще 4 пентхауса находятся на верхнем этаже. Таким образом, в комплексе появилось 10 пентхаусов.

Когда эскиз стал обрастать чертежами (на картинке выше) и расчетами, у заказчика появились сомнения, стоит ли затевать сложную и ответственную инженерную историю с подвесным жильем… Но в итоге мосты все-таки удалось реализовать. Кстати, в окончательном варианте проект выглядит достаточно близко к первоначальному эскизу, нарисованному в метро. Такое происходит не часто.
Если не знать всех деталей проекта (на фото ниже), то со стороны каждый мост выглядит легким и прозрачным. Однако это визуальный трюк. Каждый мост лежит на металлических фермах высотой в этаж. Это сделало смелое архитектурное решение абсолютно безопасным. А остекление наружных стен позволило конструкции стать «невидимой».

Эксперименты с видовыми квартирами не закончились на мостах. Фасад был дополнен многочисленными выступами, которые, с одной стороны, создавали определенный ритм, а с другой – улучшенные потребительские характеристики, такие как прямоугольные остекленные эркеры и/или террасы.
В результате изначальная идея стеклянного фасада, нанизанного на каменную основу, переродилась в зеркальное отражение – каменный контур с несимметричными окнами опирается на стеклянный каркас, который будто растворяется в небе за счет отражающего эффекта.

Как мы и рассчитывали, «висячие сады Семирамиды» оказались самой востребованной частью здания: квартиры в мостах были раскуплены в первую очередь. Ведь больше подобного, по крайней мере, в Москве пока нет. А это привлекательно для тех, кто ищет для себя нечто принципиально отличное от всего остального, для людей незаурядных.
Подробно об авторе можно прочитать в статье: «Чтобы понять, каким будет массовое жилье будущего, нужно посмотреть на элитные квартиры».
